(+373) 68 888 533
Poliprim-Grup! Дурлешты, ул. Николае Димо, 2 комнаты + гостиная. Белый вариант!
14 Просмотров
ID 442954
Характеристики
Регион
Дурлешты
Кол. комнат
2 комнаты + Ливинг
Жилой фонд
Новострой
Состояние
Незавершённое строительство
Площадь
67 м²
Этаж
4/9 этажей
Кол-во санузлов
2 ванные
Автономное отопление
Да
Стр. компания
Poliprim-Grup
Описание
Купи квартиру в новом доме, в белом варианте и вдохни в нее жизнь!
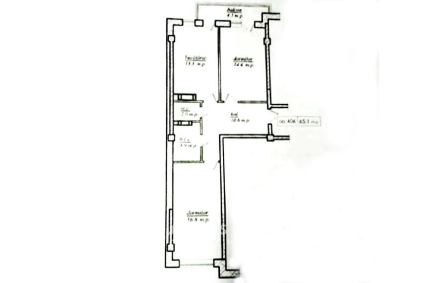
Представляем вашему вниманию квартиру в новом доме, расположенный в Дурлештах, ул. Николае Димо. Квартира имеет площадь 67м2 и разделена на: 2 комнаты, гостиная, кухня, балкон, 2 санузла и прихожая.
- белый вариант;
- автономное отопление;
- стеклопакеты;
- двустороннее расположение;
- видеонаблюдение;
- парковочные места.
Рядом есть: Банк, Аптека, Детский Садик, Рынок, Школа, Супермаркет, Игровая Площадка, Парк, Парковка.
Почему покупать через компанию Acces Imobil? Клиенты которые покупают квартиру через компанию Acces Imobil получают профессиональные риэлторские услуги абсолютно БЕСПЛАТНО!
- Бесплатную консультацию по реальным рыночным ценам;
- Юридическая консультация в сфере недвижимости (проверка и подготовка нужных документов для заключении сделки);
- Профессиональная консультация по ипотечным кредитам;
- Помощь на протяжении всего процесса купли - продажи недвижимости (экономите время, нервы и деньги).
Преимущества
Школа
500 m
Аптека
300 m
Детский сад
500 m











