Новострой! ул. Г. Мадан, Старая Почта, 1 комната + гостиная. Белый вариант!
846 Просмотров
ID 399308
Характеристики
Регион
Старая почта
Кол. комнат
1 комната
Жилой фонд
Новострой
Состояние
Белый вариант
Площадь
40 м²
Этаж
4/11 этажей
Кол-во санузлов
1 ванная
Автономное отопление
Да
Планировка
Индивидуальная
Стр. компания
Elat Neocons
Описание
Ваш дом - это ваше зеркальное отражение!
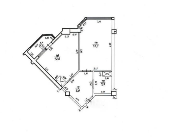
Продаётся квартира в новом жилом комплексе, расположенная Старая Почта, ул. Геогре Мадан! Квартира площадью 40м2 и разделена на: 1 комнату, гостиная, кухню, балкон, ванную комнату и прихожую.
- автономное отопление;
- стеклопакеты;
- бронированная дверь;
- парковочные места.
ВНИМАНИЕ! Прямо сейчас Вы имеете возможность купить квартиру в кредит, при наличии всего лишь 30% от стоимости объекта недвижимости!
Почему покупать через компанию Acces Imobil? Клиенты которые покупают квартиру / дом / коммерческое помещение / земельные участки через компанию Acces Imobil получают профессиональные риэлторские услуги абсолютно БЕСПЛАТНО!
- Бесплатную консультацию по реальным рыночным ценам;
- Юридическая консультация в сфере недвижимости (проверка и подготовка нужных документов для заключении сделки);
- Профессиональная консультация по ипотечным кредитам;
- Помощь на протяжении всего процесса купли - продажи недвижимости (экономите время, нервы и деньги).
Преимущества
Школа
500 m
Аптека
300 m
Детская площадка
200 m
Детский сад
500 m
Парковка
200 m




































