(+373) 61 235 888
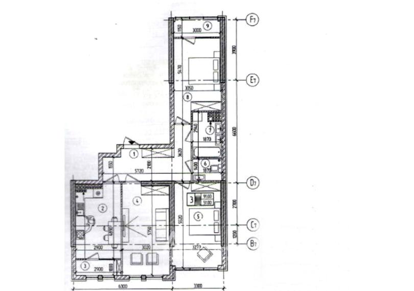
SkyHouse! Botanica, Cetatea Alba street, 3 rooms + living! White Version!
264 Views
ID 407620
Properties
Location
Botanica
Rooms Nr.
3 rooms + Living
Housing stock
New building
Condition
Construction in progress
Area
91 m²
Floor
10/18 floors
Nr. bathrooms
2 bathrooms
Autonomous heating
Yes
Const. company
SkyHouse
Description
Facilities
School
500 m
Supermarket
200 m




















