(+373) 68 888 279
Exfactor! Ciocana, N. Milescu Spataru street, Ciocana, 1 room + living. White version!
761 Views
ID 388250
Properties
Location
Ciocana
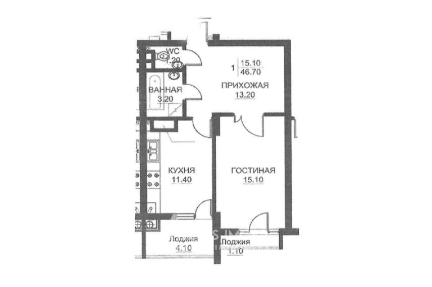
Rooms Nr.
1 room + Living
Housing stock
New building
Condition
White version
Area
47 m²
Floor
6/10 floors
Nr. bathrooms
1 bathroom
Autonomous heating
Yes
Planning
Individual
Const. company
Exfactor
Description
Facilities
Park
250 m
Supermarket
200 m

















