(+373) 68 888 475
City Gardens! Rascani, Renasterii avenue, 3 rooms + living. White Version!
310 Views
ID 436128
Properties
Location
Râșcani
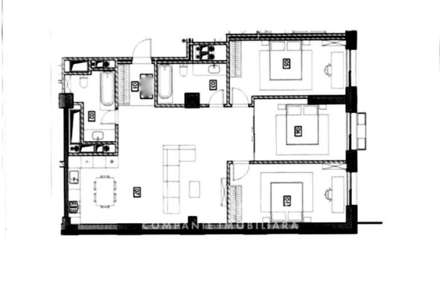
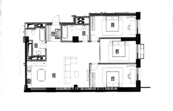
Rooms Nr.
3 rooms + Living
Housing stock
New building
Condition
Construction in progress
Area
109 m²
Floor
4/12 floors
Nr. bathrooms
2 bathrooms
Autonomous heating
Yes
Planning
Individual
Description
Facilities
Pharmacy
300 m
Park
250 m

















