Satul German! Botanica, str. Europa, 1 cameră. Variantă Albă!
Proprietăți
Descriere
Un concept imobiliar unic, care face ca standardele de locuire pe care le oferă să fie greu de egalat!
Alege un stil de viață mai aproape de natură, alege Satul German!
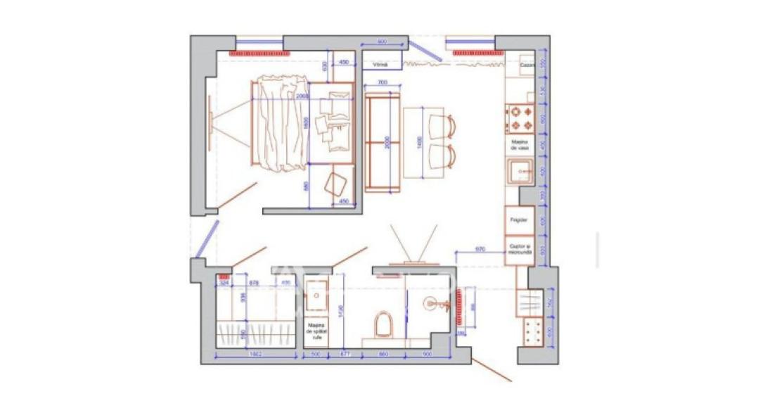
Spre vânzare apartament în bloc nou, amplasat în sectorul Botanica, str. Europa. Locuința se prezintă în varianta albă cu o suprafață de 40m2, situată la etajul 1 din 5. Compartimentare: 1 cameră, bucătărie, 2 balcoane, bloc sanitar și antreu.
Satul German, este primul și singurul proiect creat după modelul unui orășel European în Moldova.
- încălzire autonomă;
- încălzire prin pardoseală în bucătărie și baie;
- geamuri termopane/panoramice;
- ușă blindată;
- garderobă;
- supraveghere video;
- locuri de parcare;
- curte de tip închis.
De ce să cumperi prin compania Acces Imobil?
Clienții care cumpără un apartament prin compania Acces Imobil beneficiază de servicii imobiliare profesioniste absolut GRATUIT!
- Consultanță gratuită cu privire la prețurile reale de piață;
- Consultanță juridică în domeniul imobiliar (verificarea și pregătirea actelor necesare pentru tranzacție);
- Consultanță profesionistă cu privire la accesarea unui credit ipotecar;
- Ajutor pe întreg procesul de vânzare-cumpărare a unui imobil (economisiți timp, nervi și bani).



















































