Newton House! Botanica, str. Grădina Botanică, 1 cameră + living. Variantă Albă!
Proprietăți
Descriere
Un concept imobiliar unic, care face ca standardele de locuire pe care le oferă să fie greu de egalat!
Alege un stil de viață mai aproape de natură, alege NEWTON HOUSE Grădina Botanică!
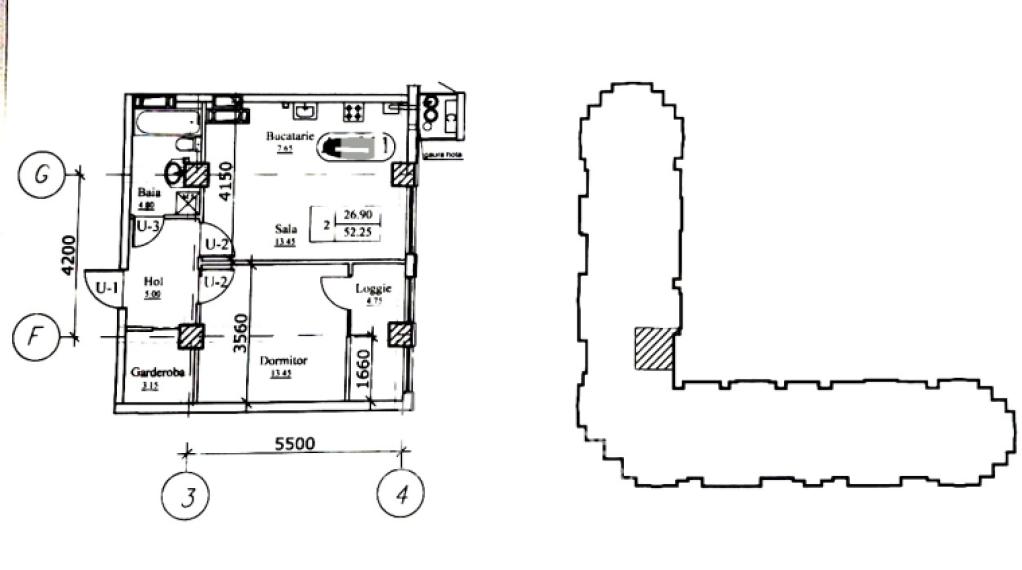
Spre vânzare apartament în bloc nou, construit de compania "INAMSTRO" amplasat în sectorul Botanica, str. Grădina Botanică. Locuința se prezintă în varianta albă cu o suprafață de 52m2, situată la etajul 11 din 16. Compartimentare: 1 cameră, living, bucătărie, balcon, bloc sanitar și antreu.
- variantă albă;
- încălzire autonomă;
- geamuri termopane;
- ușă blindată;
- localizare de mijloc;
- locuri de parcare.
De ce să cumperi prin compania Acces Imobil?
Clienții care cumpără un apartament prin compania Acces Imobil beneficiază de servicii imobiliare profesioniste absolut GRATUIT!
- Consultanță gratuită cu privire la prețurile reale de piață;
- Consultanță juridică în domeniul imobiliar (verificarea și pregătirea actelor necesare pentru tranzacție);
- Consultanță profesionistă cu privire la accesarea unui credit ipotecar;
- Ajutor pe întreg procesul de vânzare-cumpărare a unui imobil (economisiți timp, nervi și bani).
















