(+373) 68 488 484
SkyHouse! Botanica, șos. Muncești, 1 cameră! Variantă Albă! + Debara!
26 Vizualizări
ID 448892
Proprietăți
Locație
Botanica
Nr. camere
1 cameră
Fond locativ
Bloc nou
Stare imobil
Varianta albă
Suprafața
37 m²
Nivel
11/18 etaje
Nr. bai
1 baie
Încălzire autonomă
Da
Planificare
Individuală
Comp. de construcții
SkyHouse
Descriere
Dacă vrei să scapi de agitația din oraș, cumpără un apartament într-un loc liniștit!
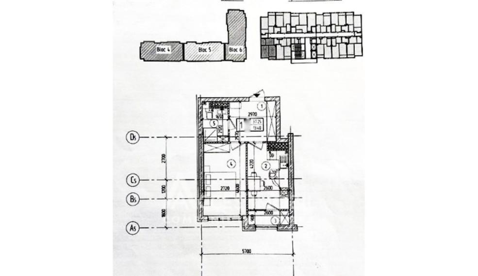
Spre vânzare apartament în bloc nou, amplasat în sectorul Botanica, șos. Muncești. Locuința are suprafața de 37m2 și este compartimentată în: 1 cameră, bucătărie, balcon, bloc sanitar și antreu.
- încălzire autonomă;
- geamuri termopane;
- ușă blindată;
- debara cu intrare direct din apartament(3,5m2);
- locuri de parcare.
De ce să cumperi prin compania Acces Imobil? Clienții care cumpără un apartament prin compania Acces Imobil beneficiază de servicii imobiliare profesioniste absolut GRATUIT!
- Consultanță gratuită cu privire la prețurile reale de piață;
- Consultanță juridică în domeniul imobiliar (verificarea și pregătirea actelor necesare pentru tranzacție);
- Consultanță profesionistă cu privire la accesarea unui credit ipotecar;
- Ajutor pe întreg procesul de vânzare-cumpărare a unui imobil (economisiți timp, nervi și bani).
Facilități
Școală
500 m
Supermarket
200 m















