SkyHouse! Botanica, str. Dimineții, 3 camere + living! Varianta Albă! + 2 debarale!
Proprietăți
Descriere
Apartament în varianta albă - alegerea perfectă pentru persoanele ce vor să amenajeze locuința de la A la Z după bunul plac!
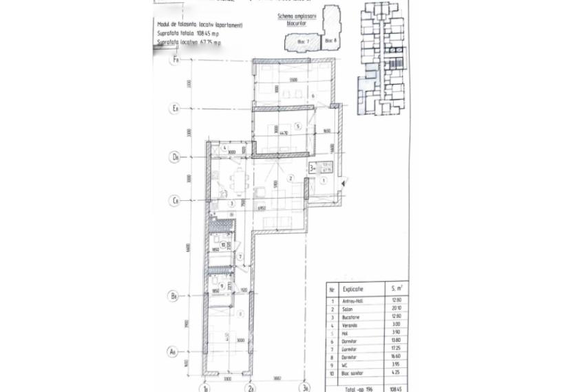
Spre vânzare apartament în bloc nou, amplasat în sectorul Botanica, str. Dimineții. Locuința are suprafața de 108m2 și este compartimentată în: 3 camere, living, bucătărie, 2 balcoane, bloc sanitar și antreu.
Darea în exploatare - 31.12.2026
- variantă albă;
- încălzire autonomă;
- încălzire prin pardoseală;
- geamuri termopan/panoramice;
- 2 debarale;
- localizare de mijloc;
- supraveghere video;
- intrare separată;
- locuri de parcare.
În apropiere se află: Bancă, Farmacie, Grădiniță, Piață, Școală, Supermarket, Teren de Joacă, Parc, Parcare.
ATENȚIE! Acum poți cumpăra apartamentul în credit cu doar 30% rată inițială!
De ce să cumperi prin compania Acces Imobil? Clienții care cumpără un apartament prin compania Acces Imobil beneficiază de servicii imobiliare profesioniste absolut GRATUIT!
- Consultanță gratuită cu privire la prețurile reale de piață;
- Consultanță juridică în domeniul imobiliar (verificarea și pregătirea actelor necesare pentru tranzacție);
- Consultanță profesionistă cu privire la accesarea unui credit ipotecar;
- Ajutor pe întreg procesul de vânzare-cumpărare a unui imobil (economisiți timp, nervi și bani).




























