(+373) 68 888 039
Bloc Nou! Codru, str. Valea Apelor, 2 camere. Variantă albă!
353 Vizualizări
ID 408660
Proprietăți
Locație
Codru
Nr. camere
2 camere
Fond locativ
Bloc nou
Stare imobil
În construcție
Suprafața
48 m²
Nivel
5/7 etaje
Nr. bai
1 baie
Încălzire autonomă
Da
Planificare
Individuală
Descriere
Trai liniștit într-o zonă verde! Crește-ți picii într-o zonă ecologică și sigură!
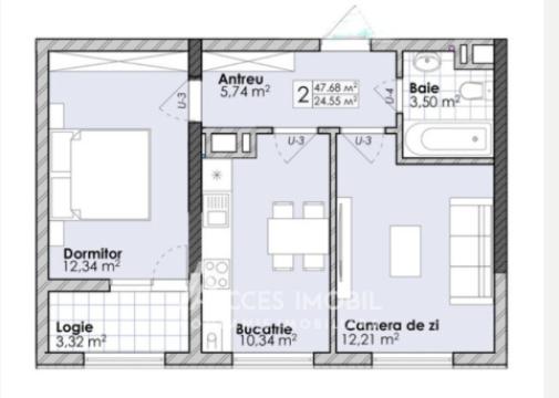
Spre vânzare apartament în bloc nou, amplasat în Codru, str. Valea Apelor. Locuința se prezintă cu suprafața de 48m2, localizată la nivelul 5 din 7. Apartamentul este compartimentat în: 2 camere, bucătărie, balcon, bloc sanitar și antreu.
- încălzire autonomă;
- geamuri termopan;
- ușă blindată;
- localizare de mijloc;
- supraveghere video;
- locuri de parcare;
- teren de joacă.
ATENȚIE! Imobilul poate fi cumpărat în credit cu doar 30% rată inițială.
De ce să cumperi prin compania Acces Imobil? Clienții care cumpără un apartament prin compania Acces Imobil beneficiază de servicii imobiliare profesioniste absolut GRATUIT!
- Consultanță gratuită cu privire la prețurile reale de piață;
- Consultanță juridică în domeniul imobiliar (verificarea și pregătirea actelor necesare pentru tranzacție);
- Consultanță profesionistă cu privire la accesarea unui credit ipotecar;
- Ajutor pe întreg procesul de vânzare-cumpărare a unui imobil (economisiți timp, nervi și bani).
Facilități
Farmacie
300 m
Teren de joacă
200 m
Parcare
200 m















