(+373) 68 888 507
Bloc Nou! Durlești, str. Regina Elizabeta, 1 cameră + living. Variantă albă!
66 Vizualizări
ID 427963
Proprietăți
Locație
Durlești
Nr. camere
1 cameră + Living
Fond locativ
Bloc nou
Stare imobil
În construcție
Suprafața
48 m²
Nivel
1/14 etaje
Nr. bai
1 baie
Încălzire autonomă
Da
Planificare
Individuală
Comp. de construcții
Golban Trade
Descriere
Cumpără un apartament în varianta albă și dă-i viață după placul tău!
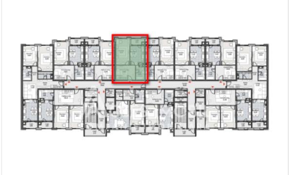
Îți prezentăm apartament în bloc nou situat în Durlești, str. Regina Elizabeta. Apartamentul are suprafață totală de 48m2 și este compartimentat în: 1 cameră, living, bucătărie, balcon, bloc sanitar și antreu.
- încălzire autonomă;
- geamuri termopan/panoramice;
- ușă blindată;
- supraveghere video;
- localizare de mijloc;
- locuri de parcare.
În apropiere se află: Școală, Piață, Grădiniță, Farmacie, Bancă, Spital, Supermarket, Teren de Joacă.
De ce să cumperi prin compania Acces Imobil? Clienții care cumpără un apartament prin compania Acces Imobil beneficiază de servicii imobiliare profesioniste absolut GRATUIT!
- Consultanță gratuită cu privire la prețurile reale de piață;
- Consultanță juridică în domeniul imobiliar (verificarea și pregătirea actelor necesare pentru tranzacție);
- Consultanță profesionistă cu privire la accesarea unui credit ipotecar;
- Ajutor pe întreg procesul de vânzare-cumpărare a unui imobil (economisiți timp, nervi și bani).
Facilități
Farmacie
300 m
Teren de joacă
200 m





















