(+373) 69 790 124
Poliprim-Grup! Durlești, str. Nicolae Dimo, 2 camere + living. Variantă albă!
828 Vizualizări
ID 423460
Proprietăți
Locație
Durlești
Nr. camere
2 camere + Living
Fond locativ
Bloc nou
Stare imobil
În construcție
Suprafața
64 m²
Nivel
2/9 etaje
Nr. bai
1 baie
Încălzire autonomă
Da
Planificare
Individuală
Comp. de construcții
Poliprim-Grup
Descriere
Cumpără un apartament în varianta albă și dă-i viață după placul tău!
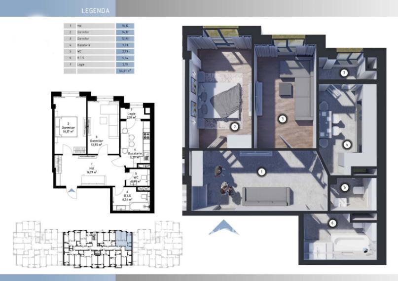
Îți prezentăm apartament în bloc nou situat în Durlești, str. Nicolae Dimo. Apartamentul dispune de o suprafață de 64m2 și este compartimentat în: 2 camere, living, bucătărie, 2 balcoane, bloc sanitar și antreu.
- variantă albă;
- încălzire autonomă;
- geamuri termopan/panoramice;
- ușă blindată;
- supraveghere video;
- sistem de alarmă;
- curte de tip închis.
În apropiere se află: Bancă, Farmacie, Grădiniță, Piață, Școală, Supermarket, Teren de Joacă, Parc, Parcare.
De ce să cumperi prin compania Acces Imobil? Clienții care cumpără un apartament prin compania Acces Imobil beneficiază de servicii imobiliare profesioniste absolut GRATUIT!
- Consultanță gratuită cu privire la prețurile reale de piață;
- Consultanță juridică în domeniul imobiliar (verificarea și pregătirea actelor necesare pentru tranzacție);
- Consultanță profesionistă cu privire la accesarea unui credit ipotecar;
- Ajutor pe întreg procesul de vânzare-cumpărare a unui imobil (economisiți timp, nervi și bani).
Facilități
Școală
500 m
Teren de joacă
200 m
Parcare
200 m

























