Horus City! Râșcani, str. Tudor Vladimirescu, 1 cameră + living. Variantă albă!
Proprietăți
Descriere
Un pas spre un loc doar al tău!
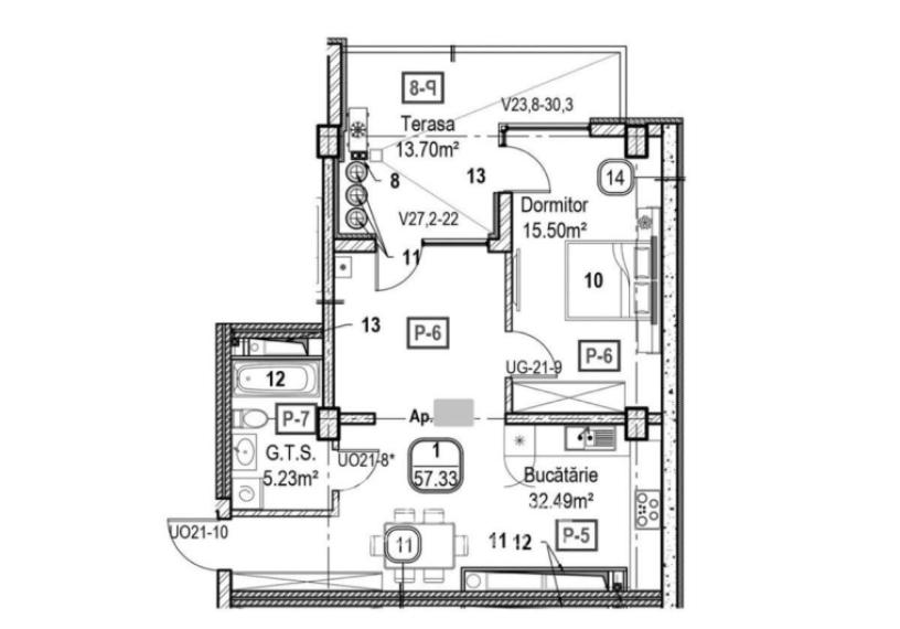
Spre vânzare apartament în bloc nou construit de compania ”Horus”, situat în sectorul Râșcani, str. Tudor Vladimirescu. Locuința cu suprafața de 58m2 este compartimentată în: 1 cameră, living, bucătărie, balcon, bloc sanitar și antreu.
- variantă albă;
- încălzire autonomă;
- geamuri termopane/panoramice;
- ușă blindată;
- terasă;
- localizare de mijloc;
- locuri de parcare.
În apropiere se află: Grădiniță, Școală, Supermarket, Teren de Joacă, Parc, Parcare.
ATENȚIE! Imobilul poate fi cumpărat în credit cu doar 30% rată inițială.
De ce să cumperi prin compania Acces Imobil? Clienții care cumpără un apartament prin compania Acces Imobil beneficiază de servicii imobiliare profesioniste absolut GRATUIT!
- Consultanță gratuită cu privire la prețurile reale de piață;
- Consultanță juridică în domeniul imobiliar (verificarea și pregătirea actelor necesare pentru tranzacție);
- Consultanță profesionistă cu privire la accesarea unui credit ipotecar;
- Ajutor pe întreg procesul de vânzare-cumpărare a unui imobil (economisiți timp, nervi și bani).






















