(+373) 68 888 120
Chirie! Spațiu Comercial 26m2! Centru, str. 31 August 1989.
855 Vizualizări
ID 441380
Proprietăți
Locație
Centru
Destinație spațiu
Comercial
Stare imobil
Medie
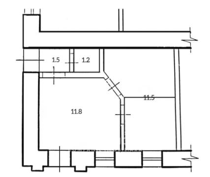
Suprafața
26 m²
Nivel
1
Potrivit Pentru
Salon de frumusețe
Descriere
Dezvoltă-ți afacerea într-o zonă solicitată și dezvoltată!
Spre chirie spațiu comercial amplasat în sector Centru str. 31 August 1989. Imobilul este potrivit pentru salon de frumusețe, oficii , dispune de intrare separată și are suprafața de 26m2.
- încălzire centralizată;
- geamuri panoramice;
- prima linie;
- intrare separată;
- locuri de parcare.
Imobilul are o poziționare reușită, cu flux mare de pietoni și acces facil la transportul public.
Pentru mai multe detalii sau pentru stabilirea unei vizionări, Compania Imobiliară ACCES IMOBIL vă stă la dispoziție!























